物件のお問い合わせは下記のフォームからお問い合わせください。
| 物件ナンバー | No.628 |
| 最寄駅 | 東武伊勢崎線「草加駅」徒歩3分 |
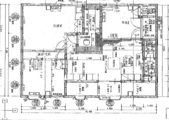
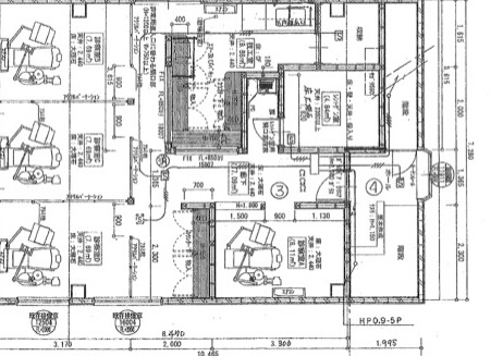
| 面積 | 2階 約23坪 3階 約23坪 |
| 賃料 | 賃料約55万円(共益費込・消費税込)・駐車場代11万円(4台分)・保証金330万円(税込) |
| 階層 | 駅前大通り路面ビル2・3階 |
| 医院設備 | 2017年製タカラ製ユニット3台(配管6台) ・レントゲン無し・VALOコードレス・ホワイトニング機器・技工機材一式 ※レントゲン室はセファロが入る大きさです |
| 月間患者数 | 閉院中 |
| オススメポイント | 埼玉県草加市!東武伊勢崎線「草加駅」徒歩3分!駅から近くアクセスが良いので通うのにとても便利な歯科医院です。駅前には、複数の大型商業施設や商店街、スーパー、コンビニ、飲食店があり、人通り・車通りが非常に多い駅前大通り路面ビル2・3階の好立地!無償譲渡・院内も広く、内装も非常に綺麗で、地域の方が多く通われている歯科居抜き物件です! 周辺環境は、数年前より草加駅周辺は再開発されたため、新しい商業施設や新築マンションが建設され、人口の増加も著しい中、医院は大通り路面ビル2・3階にあり、車通りも人通りも多い好立地な医院です。 医院内装は、2017年開業のため、院内は非常に綺麗な内装です。2階には、受付と待合室、キッズコーナー、完全個室型の診療室1室、3階には、半個室型の診療室・ユニットが3台(配管6台)並ぶ綺麗で清潔な診療室、消毒コーナー、レントゲン室と、診療しやすい導線です。 医院設備は、2017年製タカラ製ユニット3台 (配管6台)・レントゲン無し・VALOコードレス・ホワイトニング機器・技工機材一式です ※レントゲン室はセファロが入る大きさです 現在閉院中です。 医院売却理由は、移転開業のためです。 アクセスと利便性が高く、多く人口が増え続けている、東武伊勢崎線「草加駅」から徒歩3分!駅からも近く、至近には、複数の大型商業施設や商店街、スーパー、コンビニ、飲食店があり、車・自転車・人の通りが非常に多く、集客性にも困らない歯科医院です。医院は、大型・内装美麗・好立地・駐車場も付いて、無償譲渡のため、個人・法人の先生どちらにも非常におすすめの歯科居抜き物件です。 |
| 譲渡理由 | 移転開業のため |
| 譲渡金額 | 無償譲渡0円(応相談) |





















コメント